Наши проекты

Заказать сейчас

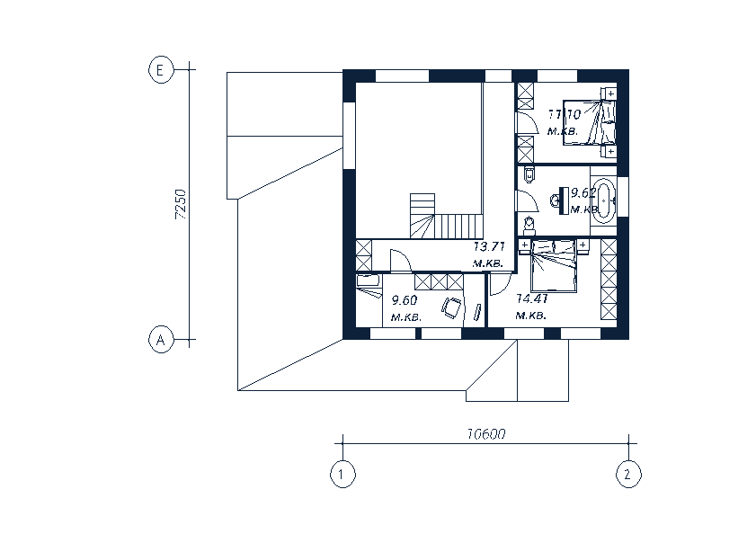
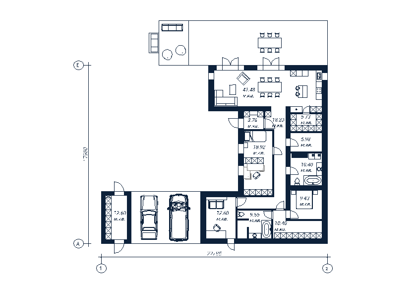
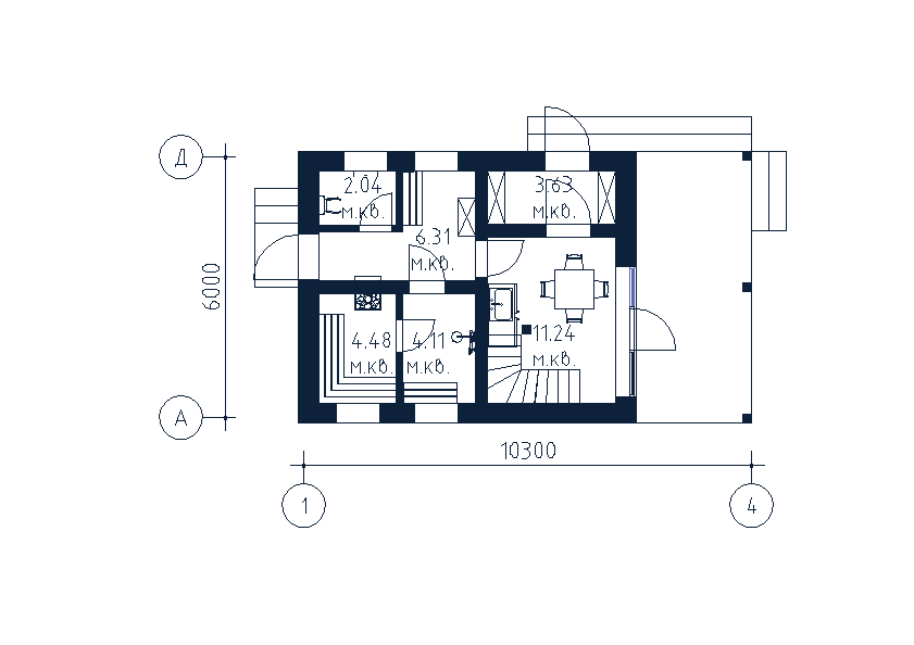
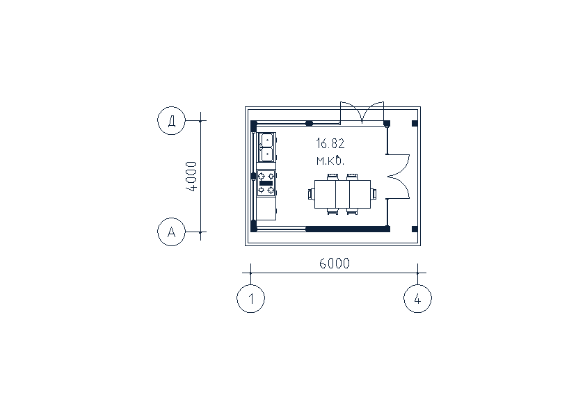
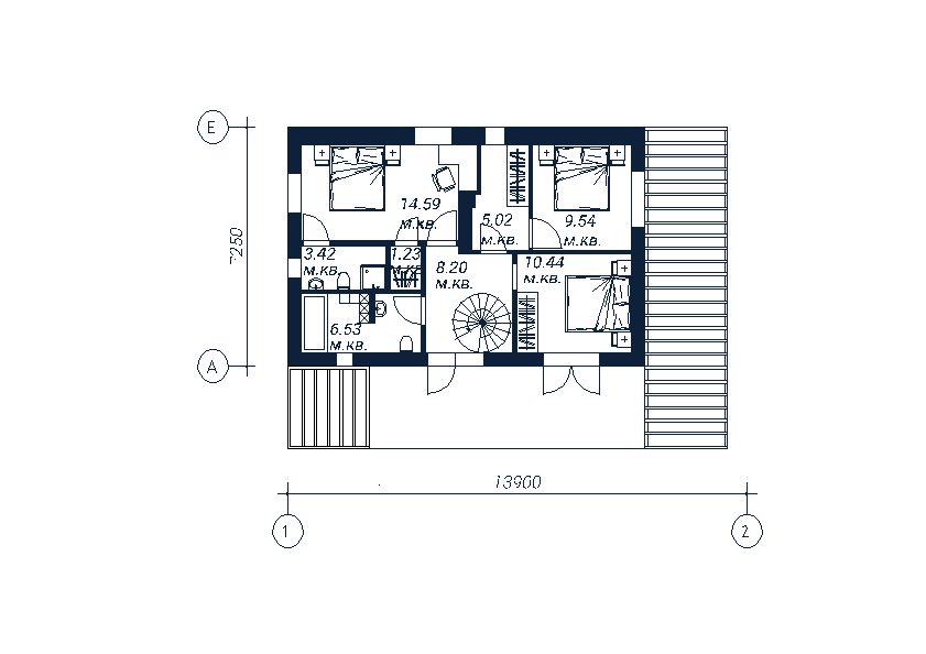
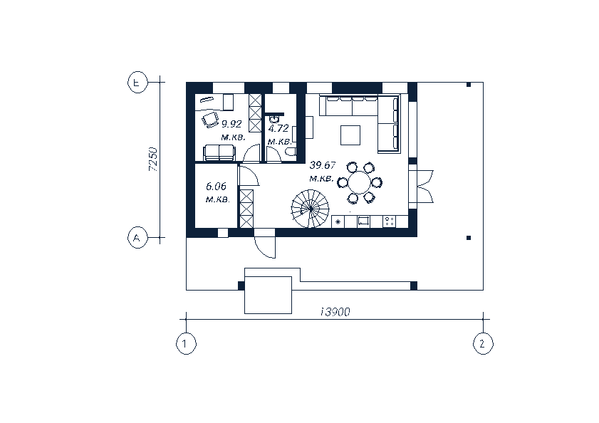
Компактный дом со скандинавским акцентом

Заказчики привезли идею своего будущего дома из путешествия по Швеции. Импонировали аскетичные формы скандинавской архитектуры. Важно было эргономично расположить и совместить все комнаты в желанном порядке - при этом так, чтобы внешне дом сохранил определенную форму, “почти квадрата”. Мы немного "поиграли" с высотой основного блока жилых помещений и зоной гостиной, объединили хозблок с общим объёмом дома, организовав в полученном пространстве навес для авто.

Так из визуально простого планировочного решения получился оригинальный экстерьер. Сердцем дома стала кухня-столовая-гостиная. в зоне гостиной мы разместили большой витраж с видом на внутренний дворик и по оси напротив, - в кухне, сделали окно. Это позволяет увидеть дом как бы насквозь и собрать максимум света.

Yuniko Engineering: проектирование, подбор подрядчиков, авторский и технический надзор. 

Архитектор: Ника Воробей

Инженер-конструктор: Юрий Воробей

Дом: 158 м2

Участок: 0,2 га

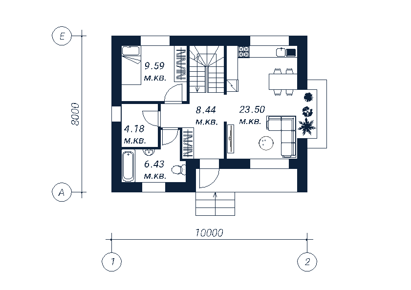
Комплексная застройка

На участке площадью 0.22 га разместили: двухэтажный жилой дом с крытой террасой, баню, мастерскую с зонами для хранения, крытый паркинг с дополнительным блоком, закрытую беседку-летнюю кухню. 

Заказчики - семейная пара, работают онлайн удаленно, много времени проводят дома, поэтому сразу спланировали и обустроили целую экосистему своей загородной жизни, где удобно и работать и отдыхать.

Мы разработали проект комплексной застройки, который предусматривает: прокладку инженерных сетей, линий канализации и водопровода сразу на всем участке; а также расчет бюджета всего строительства и план очередности работ, - что позволило соблюсти сроки возведения и оптимизировать инвестиции в строительство. 

Yuniko Engineering: проектирование, подбор подрядчиков, авторский и технический надзор.

Архитектор-дизайнер: Ника Воробей

Инженер-конструктор: Юрий Воробей

Дом: 164,5 м2

Участок:  0.22 га


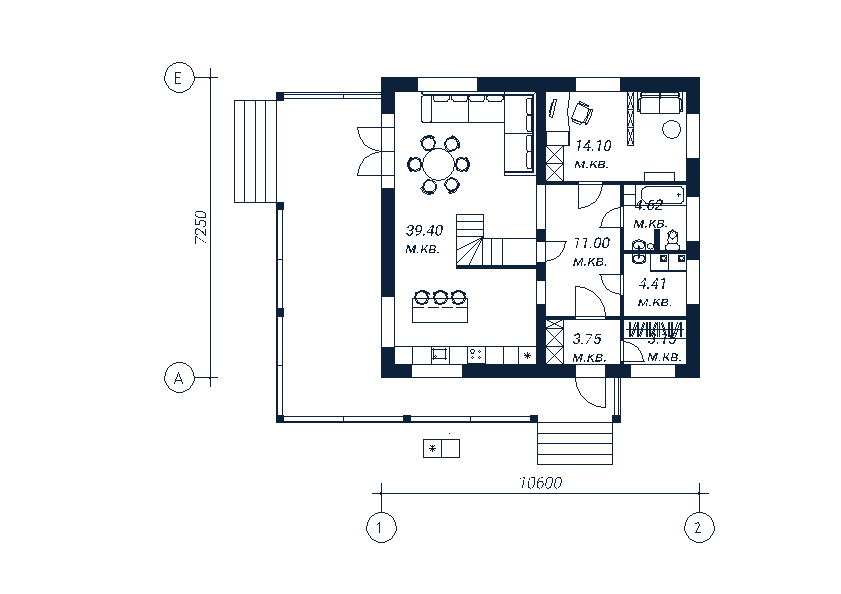
Дом с террасой и творческой мастерской

Двухэтажный дом для семьи из 4х человек. На участке уже был фундамент - незавершенное строительство предыдущих владельцев.  Мы усилили существующий фундамент и разработали индивидуальный проект с новой желаемой планировкой. Сократив площадь коридоров, увеличили полезное пространство дома. В доме есть творческая мастерская и закрытая терраса (веранда).

Отдельной задачей было корректно увязать коммуникации и, в то же время, грамотно сориентировать творческую мастерскую по сторонам света. Воду подвели кратчайшим путем, расположив мастерскую на 2-м этаже над кухней. Окна выходят на запад, - владелица делает творческие работы в основном по вечерам, любуясь закатами. 

Yuniko Engineering: проектирование, подбор подрядчиков, авторский и технический надзор. Дом возведен партнерской строительной компанией.

Архитектор-дизайнер: Ника Воробей

Инженер-конструктор: Юрий Воробей

Дом: 205 м2

Участок: 0,15 га


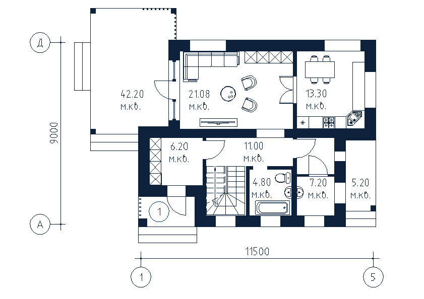
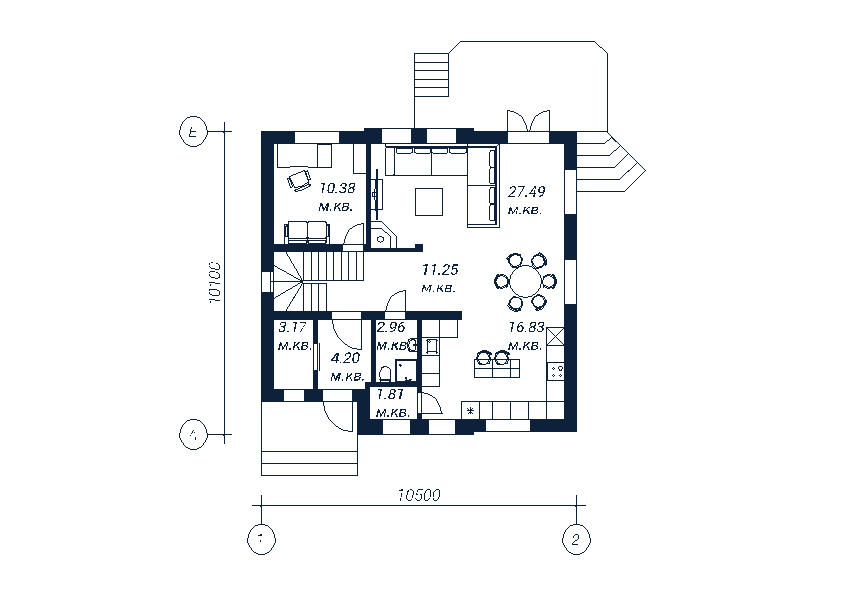
Одноэтажный дом из сруба

Заказчики купили участок с почти новым домом, в живописном месте на высоком берегу реки Неман. Дом не устроил по функционалу, поэтому они заказали индивидуальный проект дома с просторной гостиной, удобной кухней, мастер-спальней и панорамными окнами с видом на реку.

Мы спроектировали дом площадью 165,83 м2 и выполнили реконструкцию, присоединив его к существующему на участке дому (площадью 100,2 м2). Необходимо было объединить две части: конструктивно и визуально. Крытой галереей-переходом соединили прежнюю и новую части под углом друг к другу, чтобы выигрышно скомпоновать весь дом на участке.

Yuniko Engineering: проектирование, подбор подрядчиков, авторский и технический надзор. Дом возведен партнерской строительной компанией.

Архитектор-дизайнер: Ника Воробей

Инженер-конструктор: Юрий Воробей

Дом: 266,03 м2

Участок: 0,25 га


Барнхаус

Каркасный дом с лаконичной отделкой фасадов. Участок расположен вблизи береговой линии и отличается высоким уровнем береговых вод - что, в том числе, определило выбор фундамента: установили свайно-ростверковый. Конструктивной особенностью стал безраспорный вынос кровли 3 метра над террасой, при каркасном исполнении несущего остова дома.

Мы учли все требования к системе вентиляции в каркасных домах - предусмотрели естественную вентиляцию каждого помещения в доме. Тепловую инерцию добавили за счет обшивки цементно-стружечными плитами снаружи дома и гипсоволокнистыми листами внутри.

Yuniko Engineering: проектирование, подбор подрядчиков, авторский и технический надзор. Дом возведен партнерской строительной компанией.

Архитектор: Михаил Дерновой 

Инженер-конструктор: Юрий Воробей

Дом: 135,4 м2

Участок: 0,2 га



Дом с зоной отдыха

Дом из керамзитобетонных блоков. Первоначальный запрос заказчика: реконструировать существующий фамильный дом из бруса и адаптировать его для постоянного проживания своей семьи. Обследовав дом, мы выявили более 85% износа. В таких случаях снос прежнего и строительство нового дома считается экономически более целесообразным.

По просьбе заказчика при разработке проекта нового дома, мы воссоздали некоторые элементы снесенного деревенского дома. Современное прочтение получили двускатная крыша и мансардный этаж.

Yuniko Engineering: проектирование, подбор подрядчиков, авторский и технический надзор. Дом возведен партнерской строительной компанией.

Архитектор: Олег Здольников

Инженер-конструктор: Юрий Воробей

Дом: 122 м2

Участок: 0,2 га


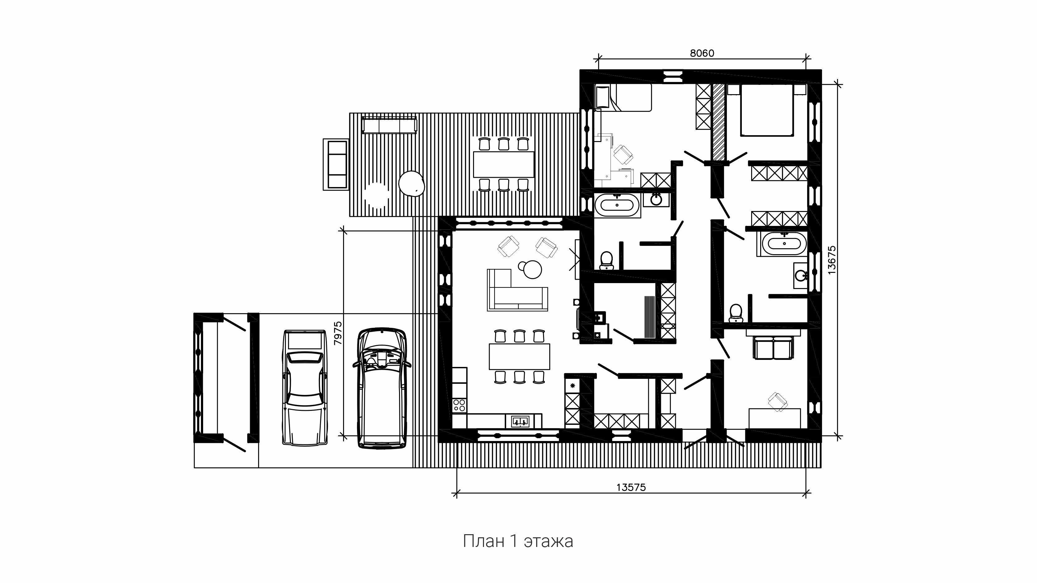
Двухэтажный дом в современном стиле

В январе 2022 года к нам обратилась пара с двумя маленькими детьми: “Мечтаем встретить следующий Новый Год в своем доме!” Мы помогли визуализировать и воплотить в реальность это желание. Дом площадью 120 м2 гармонично расположили на участке в 15 соток, оставив пространство на придомовую территорию. 

Открытая винтовая лестница в центральной части дома - изысканный элементом декора, по желанию хозяйки хорошо просматривается из гостиной и является местом притяжения, где можно читать с чашкой кофе ранним утром, пока дети спят.

На первом этаже эргономические параметры большой уютной гостиной-столовой рассчитали для сбора всей семьей или с гостями. Здесь же обособили только кабинет и котельную с с/у, - владельцам хотелось сохранить больше открытого пространства, пусть и в небольшом по площади помещении. 

На втором этаже: мастер-спальня с с/у и гардеробной и две спальни поменьше - детские комнаты, которые будут ждать своих хозяев до момента, когда они чуть повзрослеют.

Yuniko Engineering: проектирование, подбор подрядчиков, авторский и технический надзор.

Архитектор: Олег Здольников

Инженер-конструктор: Юрий Воробей

Дом: 120 м2

Участок: 0,15 га

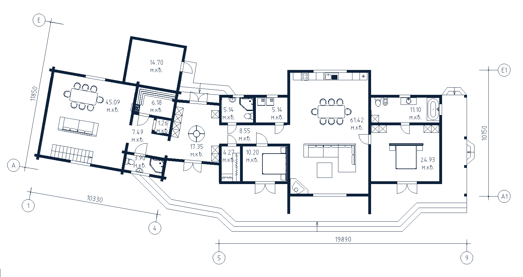
Двухэтажный дом с открытой террасой

Этот двухэтажный дом для семьи из 3х человек мы спроектировали с открытой террасой для отдыха, “вторым светом” и камином. Большое окно, высотой в 2 этажа, не разделенное межэтажным перекрытием (“второй свет”), расположили в обеденной зоне. Оно выходит на запад, чтобы круглый год сохранялась комфортная температура.

Участок с небольшим уклоном к въездной группе. По результатам геологических изысканий, основа грунтов на участке - прочные глины. Заложили ленточный фундамент с учетом глубины промерзания почвы. По контуру участка и локально у контура дома спланировали дренажные траншеи для отвода излишков воды от водоупорного основания.

Yuniko Engineering: проектирование, подбор подрядчиков, авторский и технический надзор. Дом возведен партнерской строительной компанией.

Архитектор: Ника Воробей

Инженер-конструктор: Юрий Воробей

Дом: 130 м2

Участок: 0,17 га

Минималистичный дом

Дом для семейной пары. Заказчики предпочитают уединенный образ жизни и работают удаленно из дома. Участок выбрали вблизи смешанного леса и большого озера, дом - максимально компактный с четким функционалом. Отсутствие гостевых комнат внимание к обустройству личного пространства для каждого: рабочего кабинета, кухни с максимальным количеством мест для хранения и мастер-спальни с гардеробной.

Мы сделали выход на террасу и из кухни, и из кабинета. Расположили дом и хозблок на участке таким образом, что с внутреннего двора открывается вид на лес и озеро, а соседний дом оказался вне зоны видимости и можно наслаждаться лишь видом нетронутых природных ландшафтов.

Yuniko Engineering: проектирование, подбор подрядчиков, авторский и технический надзор. 

Архитектор: Ника Воробей

Инженер-конструктор: Юрий Воробей

Дом: 130 м2

Участок: 0,17 га

Дом в классическом стиле

Двухэтажный дом в классическом стиле. Требовалось выдержать архитектуру в общей стилистике поселка, в котором расположен дом. Участок с большим уклоном естественного сложения грунтов и высоким уровнем грунтовых вод, поэтому основание дома сделали повышенной прочности, фундамент - монолитная плита.

Стандартное решение для дома на уклоне - сделать цокольный этаж, однако такой вариант заказчик не рассматривал. Поэтому в зоне максимального уклона к самой высокой части фундамента примыкает терраса с лестничными забегами. Такое решение поддерживает классический стиль архитектуры и сохраняет естественный уклон на участке.

Yuniko Engineering: проектирование, подбор подрядчиков, авторский и технический надзор. Дом возведен партнерской строительной компанией.

Архитектор: Олег Здольников

Инженер-конструктор: Юрий Воробей

Дом: 157,09 м2

Участок: 0,09 га

© 2022 YUNIKO Engineering. All rights reserved. Powered by SEOexpert.by